KAM _ UPS Cargo Süd - Projects 01
Industrial & Logistics

Cologne-Bonn Airport Expansion, Cargo Süd

Köln
Project
Management

Client type Developer

UPS-Logo

Completed by

KAM Black

German airport expansion with improved pedestrian accessibility and 24-hour operation.

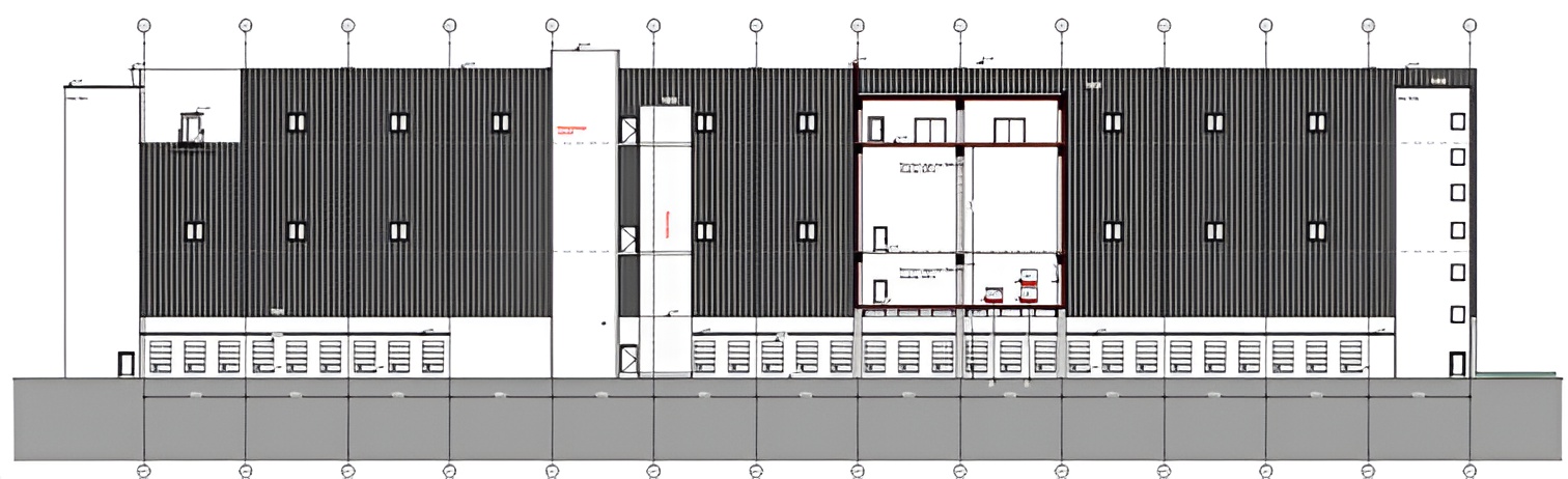
UPS plans to expand its site at Cologne-Bonn Airport by constructing a new trans-shipment hall to the south, featuring a basement level for technology and a sprinkler centre, a ground and first floor for the sorting hall, and a second floor with office and storage space. The project will also include five external staircases (two equipped with passenger lifts), two goods lifts, a connecting bridge for conveyor systems and a pedestrian bridge to the existing west hall.

The project management service includes the coordination of the complete planning phase of all specialist planners and project participants, up to the completion of the complete tender documents.

KAM _ UPS Cargo Süd - Projects 02